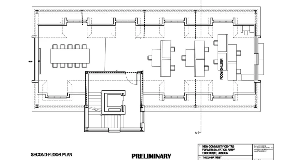
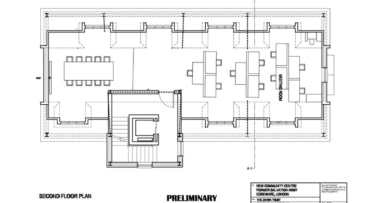
Collaborative Hub [Project Details] Share to: In the heart of a dynamic workplace, a community office space is meticulously designed to foster collaboration, creativity, and a sense of trust among the 12 staff members. Related Projects View All Projects Details Residential Garage Conversion in Dartford Details Residential Living Room- Boho Eclectic Style Details Residential High-end Traditional Kitchens Details Residential Kitchens In Surrey – Modern Details Residential Gilded Elegance Passage Details Joinery Wine cellar in Leatherhead